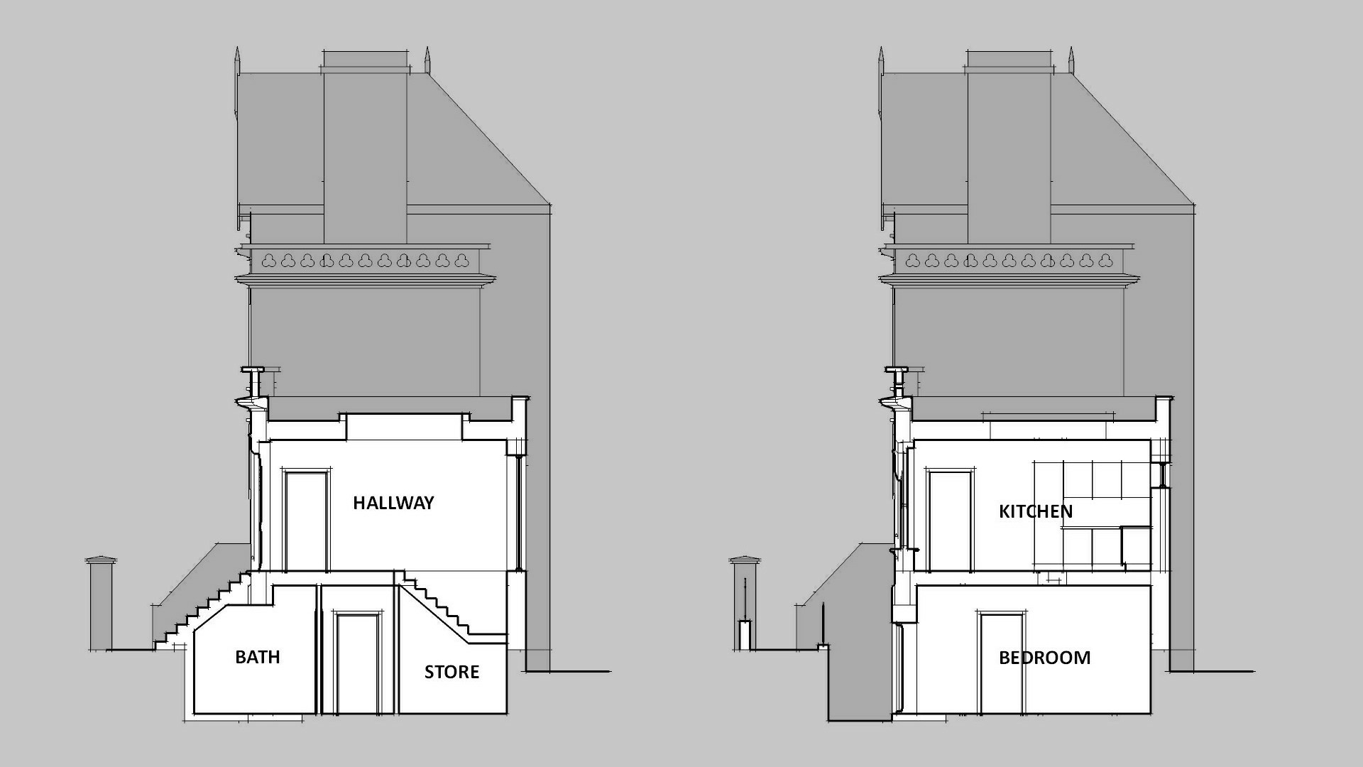
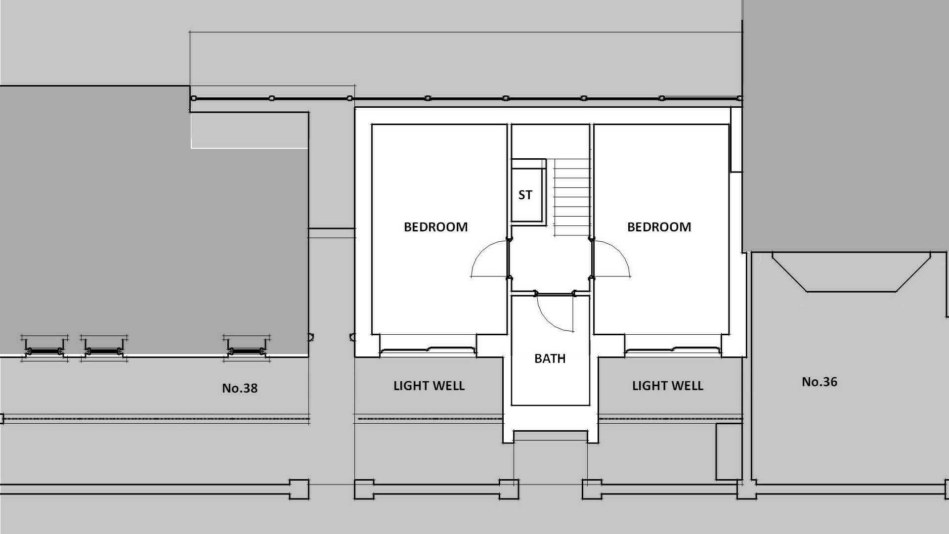
Stapleton Hall Road

Description : Erection of a new Victorian Gothic style two storey house within a conservation area

Location : Harringey, London

Value : £500,000

Status : Planning