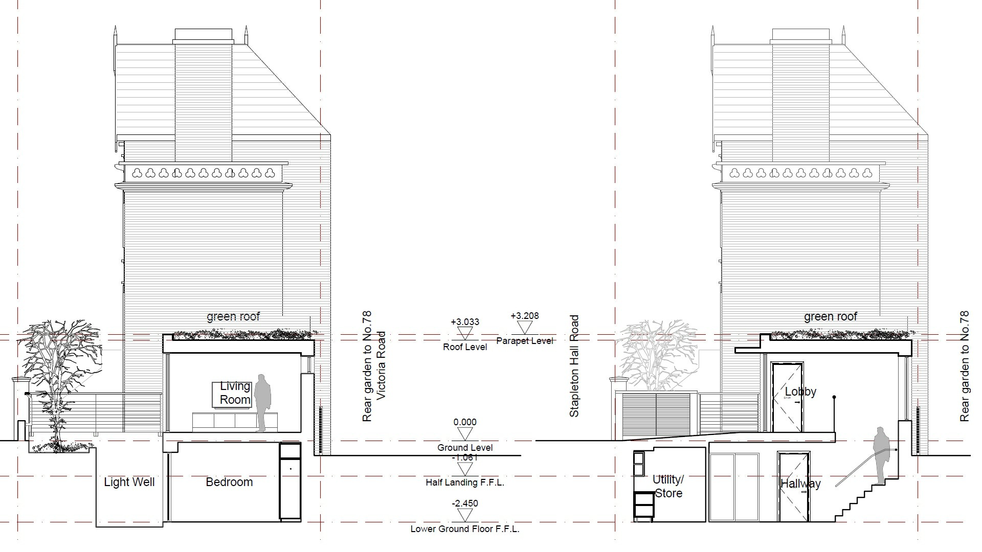
Stapleton Hall Road

Description : Erection of a new modern two storey house within a conservation area

Location : Harringey, London

Value : £500,000

Status : On site