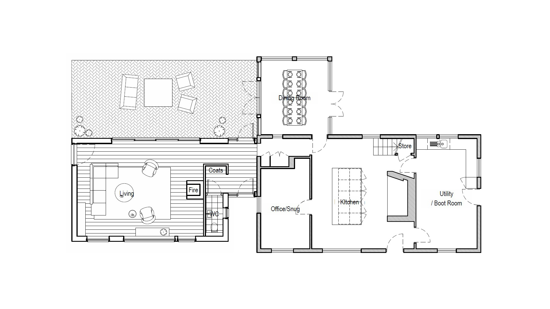
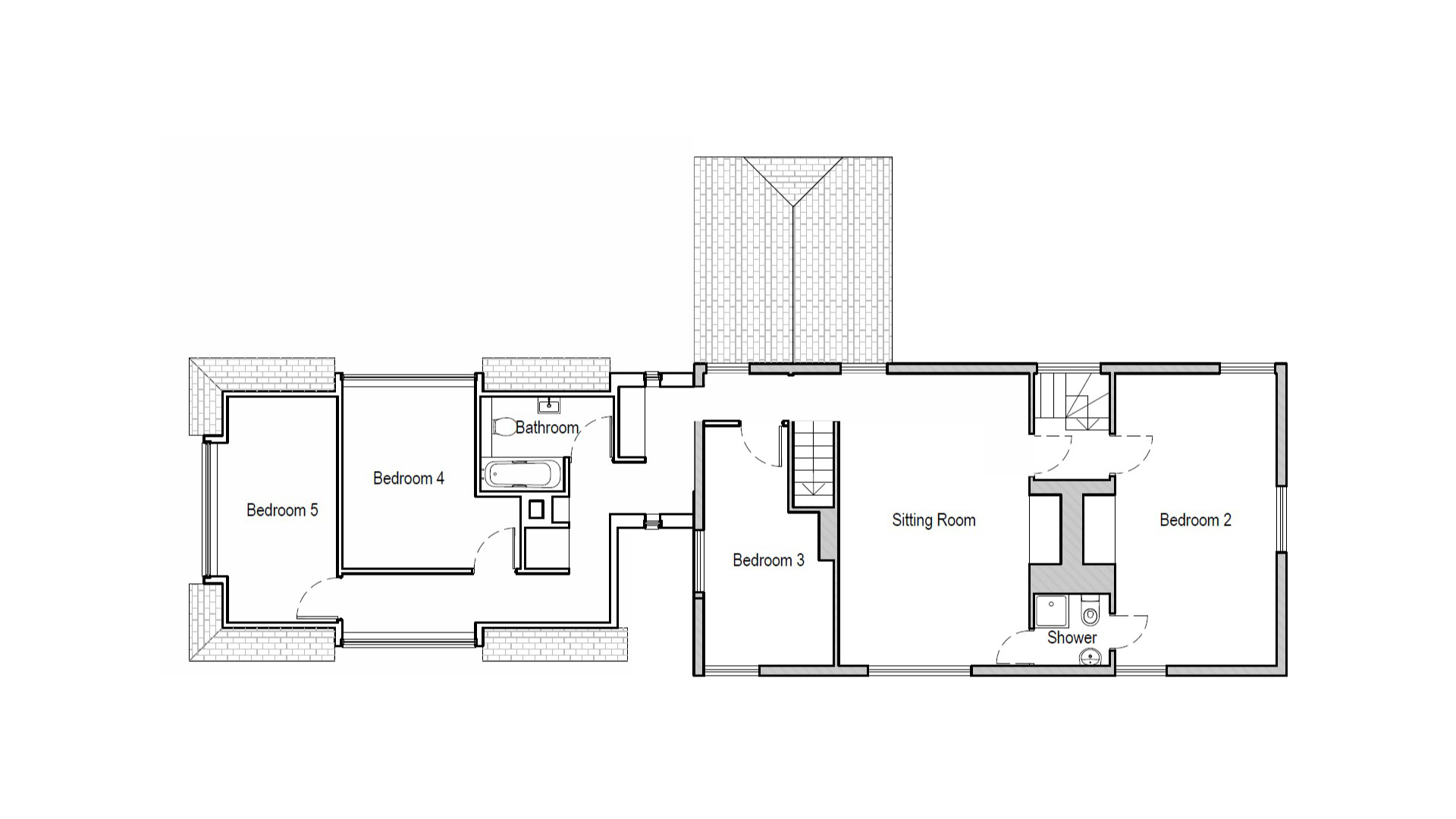
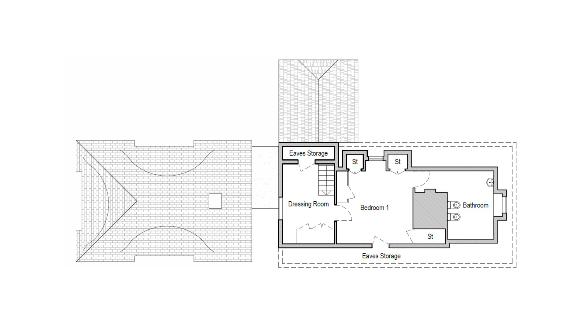
Partridge

Description : Extension to a listed cottage

Location : Rye

Value : Not disclosed

Status : Planning